TITAN Property Silver Winner

2025

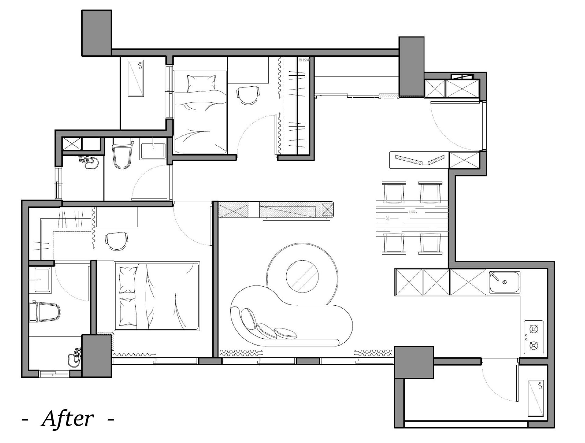
暖境

Entrant Company

Designer

Category

Interior Design - Living Spaces

Client's Name

WU,CHENG-YING

Country / Region

Taiwan

暖境.光與空間的柔性對話

本案重新翻轉原始格局中公領域的配置邏輯,針對既有空間在生活機能上的侷限加以修正,透過清晰的動線規劃與場域界定,打造出既獨立又彼此串聯的空間節奏,使公共區域呈現通透、有層次的開放感。

設計核心以「光」為起點,考量基地原有的採光優勢,我們嘗試將光線延伸至更深的空間角落,透過塊體的局部挖空與材質反射,引光入室,使日光得以自然流動於各場域之中,建立空間間的柔性連結。

主視覺選用接近日光色溫的柔和跳色與藝術塗料,與自然光產生共鳴,形塑內外光感一致的空間調性,進一步營造溫潤、寧靜且充滿生活質感的氛圍。


Warm Realm: A Gentle Dialogue Between Light and Space

This project reconfigures the logic of the original layout, particularly within the public domain. By addressing the existing spatial limitations and refining functional flow, we crafted a rhythm of spaces that are both distinct and interconnected—resulting in a public area that feels open, layered, and fluid.

At the heart of the design is light. Leveraging the site's natural daylight advantage, we extended illumination deeper into the interior through strategic voids and reflective materials. This approach allows sunlight to flow organically between zones, establishing a gentle spatial connection.

The visual identity features soft accent colors and artistic wall textures calibrated to the tone of natural daylight, resonating with the ambient sunlight to create a cohesive luminance. The result is a space of warmth, tranquility, and refined everyday living.

Credits

Landscape Design
2025
TITAN Property Winner - The Hesheng Urban Land Readjustment Zone
Pingtung County Government

Entrant Company

Yao-Ching Construction Co. Ltd

Category

Landscape Design - Parks & Open Space Landscape

TITAN Property Silver Winner
Architecture
2025
TITAN Property Winner - Freestyle

Entrant Company

Runcheng Construction Company Limited

Category

Architecture - Conceptual 

TITAN Property Silver Winner
Landscape Design
2025
TITAN Property Winner - Rich landscape
HUANG Pei-Ying

Entrant Company

Ponchi Art CO., LTD.

Category

Landscape Design - Public Landscape

TITAN Property Silver Winner
Interior Design
2025
TITAN Property Winner - Smart Ark Genesis
CLEANAWAY

Entrant Company

Young Sun Interior Design & Construction Co., Ltd.

Category

Interior Design - Office 

TITAN Property Silver Winner